物件詳細情報
| 交通 |
東武東上線 / 中板橋駅 徒歩8分 |
| その他交通 |
東武東上線 / 大山駅 徒歩13分
|
| 所在地 |
東京都板橋区弥生町 |
| 物件種目 |
貸マンション |
| 賃料 |
12.5万円 |
管理費等 |
12,000円 |
| 敷金 / 保証金 |
なし/なし |
礼金 |
なし |
| 敷引 |
- |
保証金償却 |
- |
| その他一時金 |
- |
保険等 |
加入要 / 2年間 18,000円 |
| 維持費等 |
- |
| 建物名・部屋番号 |
S-FORT中板橋 509 |
| 設備 |
宅配BOX システムキッチン バイク置き場 バス・トイレ別室 室内洗濯機置場 オートロック ディンプルキー 2口コンロ ガスコンロ付 シャワー付洗面化粧台 洗面所独立 洗面所 シャワー 洗濯機置場 給湯 都市ガス エアコン 冷房 駐輪場 照明器具 インターネット対応 インターネット使用料無料 CS BS端子 温水洗浄便座 トイレ |
| 備考 |
賃貸保証等:加入要 月額総賃料の50%、更新料12,000円/年 口座振替手数料:330円(税込)/月 毎月27日に口座振替でのお支払い ※物 件情報の明細及び申込については不動産BBよりお願いします
|
| エネルギー消費性能 |
- |
断熱性能 |
- |
| 目安光熱費 |
- |
|
|
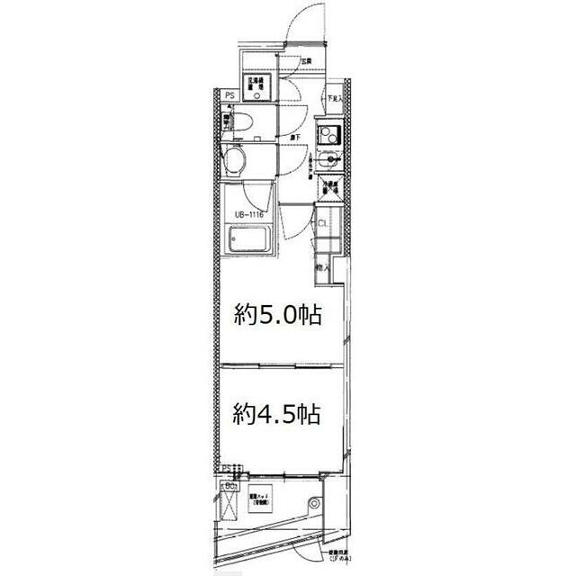
| 間取り |
1DK(DK5 洋4.5) |
主要採光面 |
南 |
| 専有面積 |
29.14㎡ |
階建/階 |
地上11階地下1階建/5階 |
| 築年月 |
2008年3月(築18年2ヶ月) |
建物構造 |
RC |
| 総戸数 |
141戸 |
|
|
| 駐車場 |
有 25,300円/月 |
バイク置き場 |
空無 |
| 駐輪場 |
有 無料 |
ペット |
- |
| 契約期間 |
2年 |
現況 |
空家 |
| 条件等 |
- |
入居可能時期 |
相談 |
| 更新料 |
12.50万円 |
|
|
| 物件番号 |
1160450217 |
|
|
| 情報公開日 |
2026/01/16 |
次回更新予定日 |
2026/05/03 |
※「-」と表示されている項目については、情報提供会社にご確認ください。
情報提供会社
(株)JRNコミュニケーションズ
- 交通:
- 東京メトロ有楽町線/東池袋 徒歩1分
- 住所:
- 東京都豊島区東池袋4丁目6-10 ルナ大住ビル2F
- TEL:
- 03-6907-8320
- FAX:
- 03-6907-8321
- 所属団体など:
| (公社)全日本不動産協会会員 |
| (一社)全国住宅産業協会会員 |
| (公社)首都圏不動産公正取引協議会加盟 |
- 取引態様:
- 仲介
- 免許番号:
- 東京都知事免許(4)第86742号
メールでお問い合わせ